MENU
Standard :
02 99 05 04 80
Service négociation : 02 99 05 04 81
white-logo
Betton (35830)
424 350 €
Contact

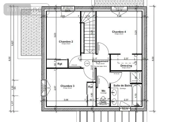
Achat Maison Betton (35830) 6 pièces Surface habitable: 101.0m2

Retour
424 350 €
Soit 3,50% à la charge de l'acquéreur
Revenir à ma sélection
Caractéristiques
Surface
101m2
Extérieur
288 m2
Pièces
6
Chambres
4

Maison à Betton (35830)

NOUVEAUTE - Seulement chez Trente-Cinq Notaires ! OPPORTUNITE RARE ! A moins de 10min de Rennes, sur la commune de BETTON, venez découvrir cette maison d'habitation individuelle neuve, actuellement en cours de construction, idéalement placée à proximité du centre-bourg, hors lotissement, au coeur d'un environnement verdoyant et sans vis-à-vis! D'une superficie habitable de 101m², elle comprendra à l'achèvement au rez-de-chaussée un hall d'entrée, un salon-séjour avec cuisine ouverte aménagée, une chambre, une salle d'eau et un WC. A l'étage, vous retrouverez un palier desservant une chambre avec dressing, deux chambres avec rangement, une salle de bains mixte et un WC indépendant; Un garage attenant de 15m² complète ce bien de qualité. L'ensemble édifié sur un terrain clos de 288m² comprenant deux places de deux stationnement, un espace jardin et deux terrasses idéalement exposées, l'une orientée Sud, l'autre orientée Ouest. Vous aurez en outre le loisir de bénéficier d'une maison neuve répondant aux dernières normes thermiques tout en pouvant choisir vos matériaux intérieurs, sans avoir à gérer les aléas de la constructions. A découvrir rapidement !

reférence du bien: 35129-6639

Diagnostics

Exempté DPE

Etat des risques

Les informations sur les risques auxquels ce bien est exposé sont disponibles sur le site : www.georisques.gouv.fr

Votre contact

SCP TRENTE CINQ NOTAIRES
16 bis rue de Rennes
35230 NOYAL CHATILLON SUR SEICHE

Formulaire de contact

Nous vous informons de l'existence de la liste d'opposition au démarchage téléphonique BLOCTEL sur laquelle vous pouvez vous inscrire conso.bloctel.fr.


Vos données personnelles sont traitées par Notariat Services en tant que responsable de traitement afin de répondre à votre demande de mise en relation avec SCP TRENTE CINQ NOTAIRES . Les grandes lignes concernant la responsabilité liée à ce traitement effectué par Notariat Services sont disponibles ici. Vos données sont conservées pendant 36 mois et sont destinées à la mise en relation avec SCP TRENTE CINQ NOTAIRES . Conformément à la loi "informatique et libertés" et au RGPD, vous pouvez exercer vos droits d'opposition, d'accès, de rectification, d'effacement, de limitation et de portabilité en adressant un email à l'adresse suivante : [email protected]. Vous pouvez également adresser une réclamation auprés de la CNIL directement via son site internet www.cnil.fr.

Contacter l'office

SCP TRENTE CINQ NOTAIRES
16 bis rue de Rennes
35230 NOYAL CHATILLON SUR SEICHE